Alloggio 10
Vai a homepage
Vista da San Grato
Alloggio 1

Confortevole trilocale con piccolo giardino privato e bella vista su Aosta

Soggiorno Giardino Vista dal soggiorno

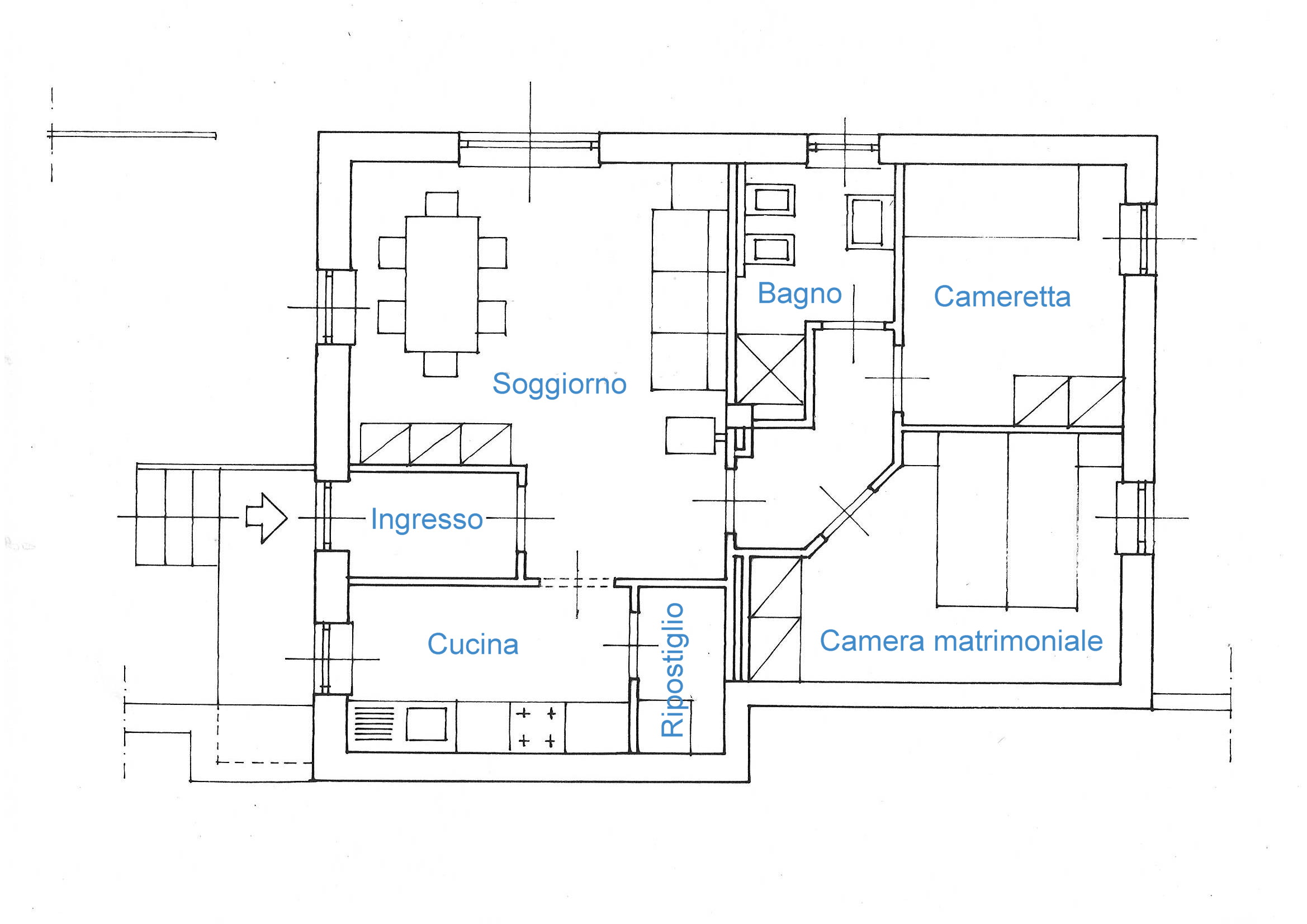
Bellissimo alloggio di circa 60 m2 con ingresso indipendente e piccolo giardino privato. E composto da ingresso, grande soggiorno con splendida vista sulla città di Aosta e sul Grand Combin, due camere da letto, cucina, bagno e piccolo sgabuzzino. Le due camere si affacciano sui prati e offrono una bella vista su Emilius e Becca di Nona. L'alloggio è stato interamente rinnovato nell'estate del 2008 ed è arredato con cura.

Ideale per una famiglia di 4/5 persone, ha al massimo 6 posti letto: due nella camera con letto matrimoniale, due nella cameretta con letto a castello e due in soggiorno in un divano letto estraibile.

Nella stagione invernale il riscaldamento è centralizzato con impianto condominiale. In ciascun alloggio è a disposizione una stufa a pellets programmabile che permette di ottenere la temperatura desiderata in inverno ed in estate.

Piantina dell'alloggio e dotazione

Piantina dell'alloggio

Nota: Normalmente non è fornita la biancheria (lenzuola, federe e asciugamani). E tuttavia possibile affittare la biancheria al momento della prenotazione. Gli animali domestici sono ammessi previo accordo con il proprietario.

Galleria di immagini

Giardino
Soggiorno
Soggiorno
Camera matrimoniale
Cameretta
Cucina
Bagno

Vai a homepage